Epleloftet kontorfelleskap

Et kontorfellesskap i idylliske omgivelser
Søndre Tåsen gård er en vakker, historisk bygning som ligger idyllisk til i en frodig eplehage på Tåsen. I 2026 åpner gården med kafé, restaurant og selskapslokaler i første etasje og kjeller. På loftet etableres et nytt kontorfellesskap for små bedrifter og frilansere.
Her får du kontorer i unike lokaler med originale takbjelker, buede vinduer og utsikt mot hagen, og alt du trenger av fasiliteter.
Fakta om Epleloftet
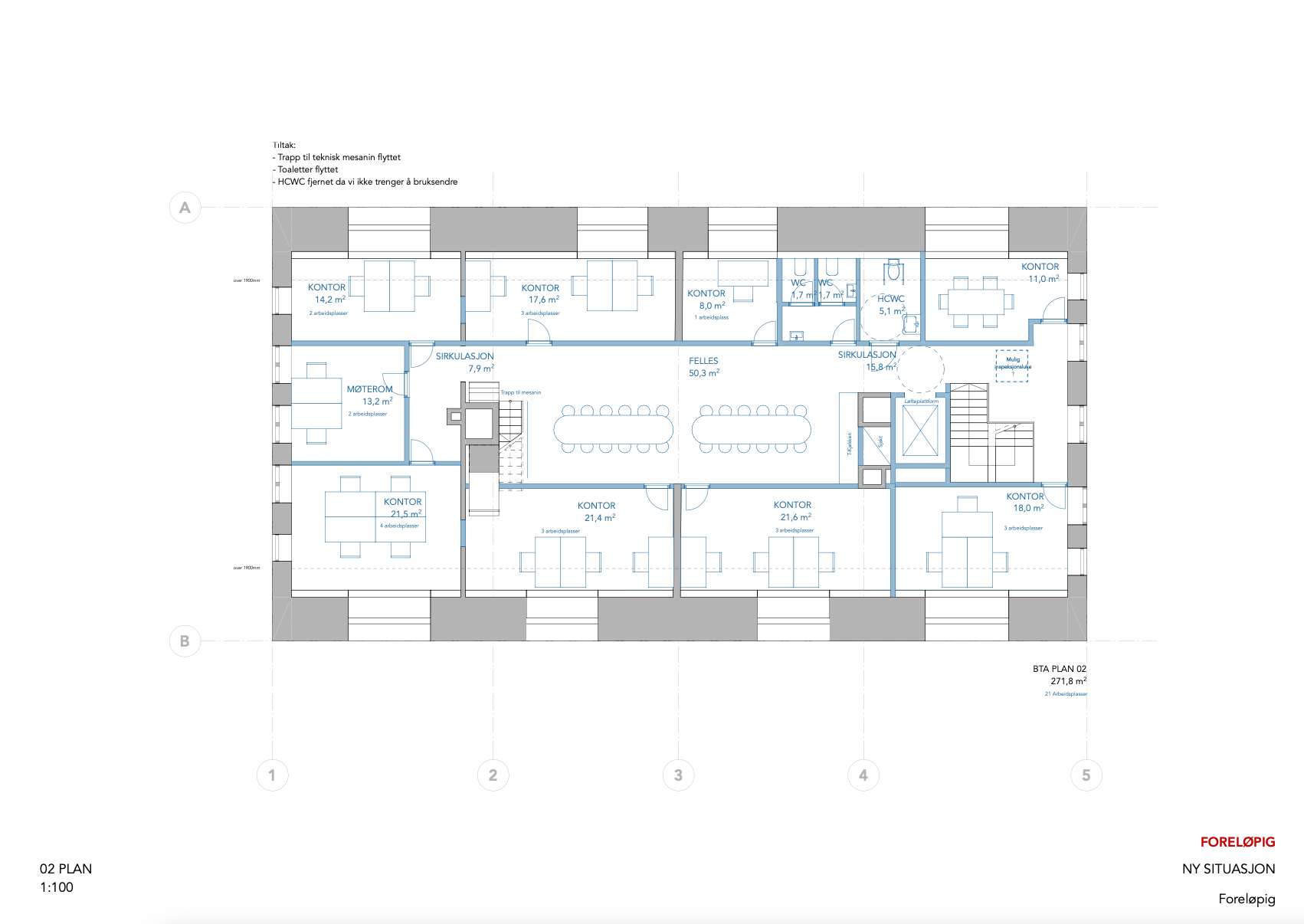
- 7 kontorer (8,8–32,6 m²)
- Koselig fellesareal med kjøkken og langbord
- Møterom tilgjengelig for alle leietakere
- Tilgang til eplehagen og eget uteområde
- Kafé i første etasje
- Restaurant og selskapslokaler på gården
- Sentral, men lun beliggenhet
- Parkeringsmulighet og god kollektivdekning
- Perfekt for små bedrifter og frilansere
Epleloftet
Loftet i Søndre Tåsen gård har blant annet blitt brukt som lagringsplass for gårdens epler. Epleloftet planlegges for åpne kontorer og kontorfellesskap med syv utleieenheter, et møterom og et stort felles kjøkkenområde med langbord, samt tilgang til eget uteområde i hagen.


Koselig nærmiljø
Her ønsker vi å skape et lokalt og hyggelig fellesskap. Søndre Tåsen gård utvikles som et sted for både nærmiljøet og Oslo forøvrig, med spiseplass og hage som kan brukes til rekreasjon, lek, og små og store begivenheter. Som leietaker blir du en del av et levende nærmiljø, med mulighet til å skape egne samlinger og arrangementer.
Her ønsker vi å skape et lokalt og hyggelig fellesskap. Søndre Tåsen gård utvikles som et sted for både nærmiljøet og Oslo forøvrig, med spiseplass og hage som kan brukes til rekreasjon, lek, og små og store begivenheter. Som leietaker blir du en del av et levende nærmiljø, med mulighet til å skape egne samlinger og arrangementer.
Sentral, men skjermet beliggenhet
Søndre Tåsen gård ligger sentralt til, med gode transportmuligheter:
Søndre Tåsen gård ligger sentralt til, med gode transportmuligheter:
- 34-bussen stopper rett utenfor
- Buss 23 og 25 på Ring 3 ved Tåsen senter
- Kort gangavstand til Tåsen T-banestasjon (linje 5)
- Gang og sykkelavstand til det meste
- Parkering for bil og sykkel på tunet



Leieforhold
Som kontorleietaker får du tilgang til eget kontor. Du betaler månedlig leie som inkluderer:
- Strøm og internett (normalt forbruk)
- Tilgang til felles kjøkken, møterom og uteområder
- Renhold
Community-avgift (kr. 1.850 eks. mva/ mnd) kommer i tillegg til leien. Den dekker daglig oppfølging, spesialkaffe, printer, møteromsbooking, forbruksartikler som tørkerull, toalettpapir m.m.
Leietakere får rabatter hos serveringsstedene i første etasje. Parkeringsplass kan leies hvis tilgjengelig.
Prisnivå
![]()
︎︎︎ Last ned prospektet
- 7 kontorer (8,8 – 32,6 m²)
- Fra NOK 10,000 eks. mva/mnd.
- Pris kan diskuteres avhengig av kontraktslengde og bindingstid

︎︎︎ Last ned prospektet

Leie hos oss?
For henvendelser om leieforhold og andre spørsmål ta kontakt med Wenche Taugbøl hos Natural State.
︎︎︎ wenche@naturalstate.no
